Модерн 93 №589

Цена строительства от 6 800 000 ₽* * Стоимость не является окончательной
Заявка на консультацию
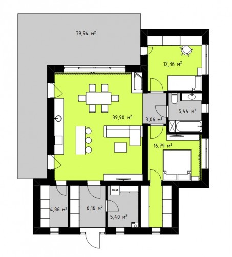
  • Общая площадь 94 м2
  • Длина 11.26 м
  • Ширина 13.16 м
  • Материал стен Газобетон/пеноблок
  • Количество этажей 1
  • Подвал Нет
  • Мансарда без мансарды
  • Гараж Нет
  • Терраса Нет
  • Проживание Круглогодичное
  • Количество комнат 3
  • Количество спален 2
  • Количество санузлов 2
  • Вид проекта дом
  • Застройщик DMGroup
  • Архитектурный стиль Модерн
  • Отделка фасада Штукатурка
  • Крыша Плоская
  • Можно купить домокомплект Нет
  • Модульный тип строения Нет
Планировки
Описание проекта

Модерн 93

Стильный дом от застройщика "ДМ Групп" готовый раскрыть характер его хозяев. Центром дома является большая кухня-гостиная с высоким потолком. В остальных помещениях проектом предусмотрена классическая высота потолков. 2 спальни и разделены туалетной комнатой.

Дом сдается в отделке white box. Гипсовая штукатурка Knauf под обои.

Комплектация дома:

- Утепленный фундамент

- Отмостка Скрытая;

- Стены: АГБ 300 мм с утеплением 100мм. Перегородки из блока 150мм. Высота этажа 2,85м;

- Фасад: Штукатурка;

- Плоская кровля Выполнена из ПВХ мембраны по системе Технониколь со сроком службы от 20 лет. Пароизоляция битумный направляемый материал, утепление экструдированный пенополистирол XPS 200 мм, мембрана 1,5 мм;

- Дверь входная: Тëплый алюминий с терморазрывом и тонированным стеклом;

-Окна: Энергоэффективный 5ти камерный профиль Veka, c замкнутым армированием, стеклопакет 40 мм. Фурнитура Winkhaus;

- Электромонтаж: Провода использованы ГОСТ ВВГнг LS. Все магистрали в гофре, на каждую комнату установлен отдельный дифференциальный автомат. Заземление.

 В Щите есть реле контроля напряжения, которое защитит бытовую технику от нежелательных перепадов напряжения;

- Отопление: Выполнено трубой stout 16х2 металлопластик, выходы под радиаторы с лучевым способом обвязки. Нет соединений в полу цельная труба от радиатора до коллектора. Тёплые полы выполнены с шагом 15 см в каждой комнате отдельный контур, что позволяет регулировать температуру в каждом помещении по разному. Электрический котел и бак теплообменника выполнен из нержавеющей стали, так же как и тэны;

- Водопровод Выполнен по технологии Axiopress с использованием трубы и фитингов PEXa. Реализована циркуляция горячей воды, что позволяет практически сразу пользоваться горячей водой. Вся система перед заливкой отпрессована давлением 8 бар;

- Вентиляция: Естественная;

- Канализация: Переливной септик V=7,5м3;

- Ливнёвая канализация: Вывод осадков с крыши выполняется через внутренний отвод с крыши в ливнёвый колодец;

- Пол: Стяжка;

Звоните!

Вас может заинтересовать
Вас может заинтересовать

Выбор местоположения

Задать вопрос / написать нам

E-mail: domgis@mail.ru

Мы свяжемся с Вами в течение дня.

Тех. поддержка
Предмет обращения:
Тукущая страница

Мы свяжемся с Вами в течение дня.

Уведомление
Предмет обращения:
Тукущая страница
Обратный звонок
Обратный звонок
Выберите ваш город
Пожаловаться

Объявление опубликовано.
Изменения сохранены

Период публикации - бессрочный, при условии подтверждения актуальности каждые 50 дней. Уведомления будут отправляться на Вашу электронную почту.

Выберите причину снятия с публикации

Снятые с публикации объявления не участвуют в поиске и недоступны для подробного просмотра.

Для повторной публикации нажмите «Вернуть в публикацию»