Двухэтажный Барнхаус 115 м² №127

Цена строительства от 6 900 000 ₽* * Стоимость не является окончательной
Заявка на консультацию
  • Общая площадь 115 м2
  • Материал стен Каркас
  • Количество этажей 2
  • Подвал Нет
  • Мансарда без мансарды
  • Гараж Нет
  • Терраса Да
  • Проживание Круглогодичное
  • Количество комнат 4
  • Количество спален 3
  • Количество санузлов 2
  • Вид проекта дом
  • Застройщик NORTH HOUSE
  • Архитектурный стиль Барнхаус
  • Отделка фасада Обшивка деревом
  • Крыша Мансардная
  • Можно купить домокомплект Нет
  • Модульный тип строения Нет
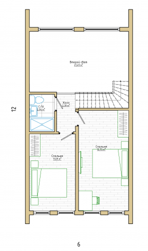
Планировки
Описание проекта

Каркасный дом в стиле Барнхаус 115м2 отличается уникальным шармом и сочетанием природных и современных элементов. Он станет не только красивым, но и практичным местом для жизни и отдыха.

Общая площадь дома 115м2

Тёплый контур 107м²

Кухня-гостиная – 1

Спальня – 3

Гардеробная - 1

С/узел — 1

Тех. помещение — 1

В стандартную комплектацию входит:

-переливной септик на 6м3.

-все инженерные коммуникации включая теплый пол

-идеально ровный пол (п/сухая стяжка)

-идеально ровные стены (гипсокартон),

-фасад и кровля КЛИК ФАЛЬЦ + планкен (скрытый крепеж)

-5-ти камерные окна VЕКА с хорошей фурнитурой и мультифункциональным покрытием.

Ждем ваши заявки! С удовольствием воплотим вашу мечту в жизнь! 


Вас может заинтересовать
Вас может заинтересовать

Выбор местоположения

Задать вопрос / написать нам

E-mail: domgis@mail.ru

Мы свяжемся с Вами в течение дня.

Тех. поддержка
Предмет обращения:
Тукущая страница

Мы свяжемся с Вами в течение дня.

Обратный звонок
Обратный звонок
Выберите ваш город
Пожаловаться

Объявление опубликовано.
Изменения сохранены

Период публикации - бессрочный, при условии подтверждения актуальности каждые 50 дней. Уведомления будут отправляться на Вашу электронную почту.

Выберите причину снятия с публикации

Снятые с публикации объявления не участвуют в поиске и недоступны для подробного просмотра.

Для повторной публикации нажмите «Вернуть в публикацию»