№ объекта: 85114
Обновлено: 03.12.2025
Наслаждайтесь жизнью за городом в вашем новом доме!
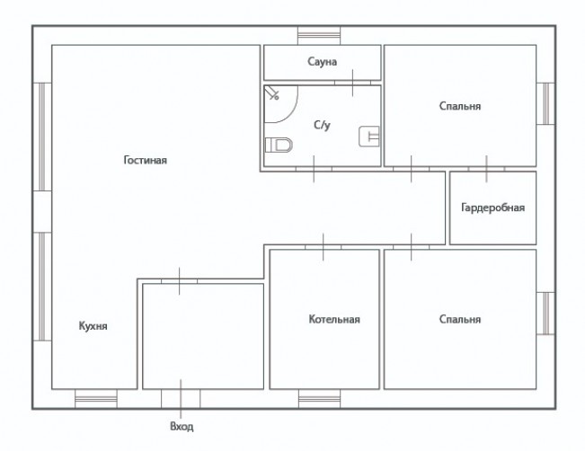
Предлагаем вам уникальную возможность приобрести стильный дом площадью 88 кв.м всовременном коттеджном поселке на участке 12 соток. Этот дом станет идеальным местом для взрослой пары, чьи дети выросли и уехали, позволяя вам насладиться жизнью вдали от городской суеты.
Уютная атмосфера и прекрасные виды создадут идеальные условия для отдыха и комфортного проживания влади от шума мегаполиса.
Основные характеристики:
* Две спальни с французскими окнами, создающими атмосферу уюта и света.
* Два санузла, обеспечивающие комфорт и удобство.
* Просторная кухня-гостиная высотой 5 метров с выходом на большую террасу 24м и большими панорамными окнами — идеальное пространство для спокойных вечеров или встреч с друзьями и родными.
* Теплый пол по всей площади, включая зоны около окон, чтобы вы всегда чувствовали себя комфортно.
* Участок 12 соток - вы сможете воплотить любой ландшафт вашей мечты: от сада до уютной зоны барбекю среди зелёных сосен.
* Центральные коммуникации.
* Строительство дома велось под проф контролем на каждом этапе - вы оцените качество и надёжность по достоинству.
Дополнительные преимущества:
* Ванная комната с естественным освещением благодаря окну
* Центральное водоснабжение
* Электричество
* Возможность подключения газа (газ по границе участка)
* Современный электрокотел с дистанционным управлением и бойлер для вашего удобства
* Пятикамерные окна обеспечивают отличную тепло- и звукоизоляцию.
Дом продается в чистовой отделке, что дает вам возможность оформить его по своему вкусу и создать пространство, где вы будете чувствовать себя по-настоящему дома.
Не упустите возможность начать новую главу вашей жизни в этом прекрасном доме!
Звоните нам для получения дополнительной информации и организации просмотра.
Наслаждайтесь жизнью за городом в вашем новом доме!
Предлагаем вам уникальную возможность приобрести стильный дом площадью 88 кв.м всовременном коттеджном поселке на участке 12 соток. Этот дом станет идеальным местом для взрослой пары, чьи дети выросли и уехали, позволяя вам насладиться жизнью вдали от городской суеты.
Уютная атмосфера и прекрасные виды создадут идеальные условия для отдыха и комфортного проживания влади от шума мегаполиса.
Основные характеристики:
* Две спальни с французскими окнами, создающими атмосферу уюта и света.
* Два санузла, обеспечивающие комфорт и удобство.
* Просторная кухня-гостиная высотой 5 метров с выходом на большую террасу 24м и большими панорамными окнами — идеальное пространство для спокойных вечеров или встреч с друзьями и родными.
* Теплый пол по всей площади, включая зоны около окон, чтобы вы всегда чувствовали себя комфортно.
* Участок 12 соток - вы сможете воплотить любой ландшафт вашей мечты: от сада до уютной зоны барбекю среди зелёных сосен.
* Центральные коммуникации.
* Строительство дома велось под проф контролем на каждом этапе - вы оцените качество и надёжность по достоинству.
Дополнительные преимущества:
* Ванная комната с естественным освещением благодаря окну
* Центральное водоснабжение
* Электричество
* Возможность подключения газа (газ по границе участка)
* Современный электрокотел с дистанционным управлением и бойлер для вашего удобства
* Пятикамерные окна обеспечивают отличную тепло- и звукоизоляцию.
Дом продается в чистовой отделке, что дает вам возможность оформить его по своему вкусу и создать пространство, где вы будете чувствовать себя по-настоящему дома.
Не упустите возможность начать новую главу вашей жизни в этом прекрасном доме!
Звоните нам для получения дополнительной информации и организации просмотра.
Выбор местоположения
Мы свяжемся с Вами в течение дня.