Продажа: Дом 89 м² + участок 10,0 соток
коттеджный посёлок Времена года, 40 (Мошковский район)

цена 6 900 000 руб.

№ объекта: 84825

Обновлено: 22.01.2026

  • Отключить автопереход
    карты со схемы на гибрид

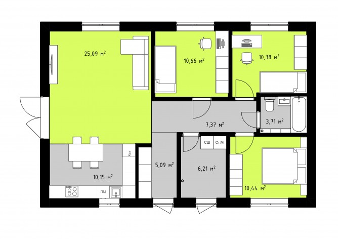
Дом 89,1 м2. 3 спальни и кухня гостиная 35 кв.м

Дом построен из автоклавного газобетона "Сибит" плотностью D500 с выполненным дополнительным утеплением базальтовой ватой 100мм ;

Снаружи штукатурка по системе;

Окна кашированные, 5ти камерный профиль;

Мягкая отмостка по периметру дома;

Входная дверь с терморазрывом и стеклом;

В дом заведено электричество, и вода;

В котельной аварийный трап;

Цена за дом указана на стадии как на фото и видео.

При продвижение работ цена будет расти.

Все виды ипотек и расчётов!


Рядом активно идёт застройка новых КП, что приведёт к росту цен земли и недвижимости в целом.

  • Общее описание
  • Местоположение
  • Информация об объекте
  • Информация о земле/участке
  • Коммуникации
  • Поселковая инфраструктура
  • Прочее

Дом 89,1 м2. 3 спальни и кухня гостиная 35 кв.м

Дом построен из автоклавного газобетона "Сибит" плотностью D500 с выполненным дополнительным утеплением базальтовой ватой 100мм ;

Снаружи штукатурка по системе;

Окна кашированные, 5ти камерный профиль;

Мягкая отмостка по периметру дома;

Входная дверь с терморазрывом и стеклом;

В дом заведено электричество, и вода;

В котельной аварийный трап;

Цена за дом указана на стадии как на фото и видео.

При продвижение работ цена будет расти.

Все виды ипотек и расчётов!


Рядом активно идёт застройка новых КП, что приведёт к росту цен земли и недвижимости в целом.

Местоположение

Регион
Новосибирская область
Район региона
Мошковский район
Населенный пункт
коттеджный посёлок Времена года
Муниципальное образование
Барлакский сельсовет
Номер дома
40
Ориентир
54:18:020401:8871

Информация об объекте

Подтип недвижимости
Дом/коттедж
Вид строения
Под самоотделку
Площадь объекта (м²)
89.00
Год постройки
2025
Материал дома
Газобетон
Этажность
1
Кол-во жилых помещений
4
Санузел
Внутренний
Терасса
нет
Мебель
нет
Возможность прописки
есть

Информация о земле/участке

Площадь участка
9.97 сот

Коммуникации

Водоснабжение
есть
Вид водоснабжения
Круглогодичное
Тип водоснабжения
Центральное
Газоснабжение
Магистральный по границе участка
Отопление
Автономное газовое

Поселковая инфраструктура

Внутрипоселковая дорога
Щебеночная
Охрана
есть
Проживание
Круглогодичное
Уличное освещение
есть
Общественные внутрипоселковые зоны
Детские площадки

Выбор местоположения

Задать вопрос / написать нам

E-mail: domgis@mail.ru

Мы свяжемся с Вами в течение дня.

Тех. поддержка
Предмет обращения:
Тукущая страница

Мы свяжемся с Вами в течение дня.

Уведомление
Предмет обращения:
Тукущая страница
Обратный звонок
Обратный звонок
Выберите ваш город
Пожаловаться

Объявление опубликовано.
Изменения сохранены

Период публикации - бессрочный, при условии подтверждения актуальности каждые 50 дней. Уведомления будут отправляться на Вашу электронную почту.

Выберите причину снятия с публикации

Снятые с публикации объявления не участвуют в поиске и недоступны для подробного просмотра.

Для повторной публикации нажмите «Вернуть в публикацию»