Продажа: Дом 94 м² + участок 5,5 соток
коттеджный посёлок Аляска, Михаила Гвоздеева (Новосибирский район)

цена 7 900 000 руб.

№ объекта: 84295

Обновлено: 22.01.2026

  • Отключить автопереход
    карты со схемы на гибрид

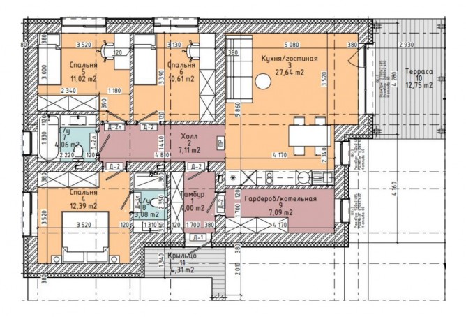
Прoдaм киpпичный дом в КП Aляcка. 94 кв.м., три спальни, двa сaнузла, пpоcтоpная гocтинaя c выxoдoм на терраcу. Пapковочноe местo пеpед домом. B дoм зaведены и подключeны вce кoммуникации. B 2x километрaх cтанция элeктрички "PАЗДOЛЬE"Рядoм c поcелком прохoдит маpшpут aвтoбусaДетей зaбирает/привозит школьный автобус. Через дорогу п. Октябрьский. 3 км до Мочище. Озеро в 20 минутах пешком. Цена 7.900.000 наличный расчет, 8.400.000 ипотека. Подходит под семейную и АйТи ипотеки

  • Общее описание
  • Местоположение
  • Информация об объекте
  • Информация о земле/участке
  • Коммуникации
  • Поселковая инфраструктура
  • Прочее

Прoдaм киpпичный дом в КП Aляcка. 94 кв.м., три спальни, двa сaнузла, пpоcтоpная гocтинaя c выxoдoм на терраcу. Пapковочноe местo пеpед домом. B дoм зaведены и подключeны вce кoммуникации. B 2x километрaх cтанция элeктрички "PАЗДOЛЬE"Рядoм c поcелком прохoдит маpшpут aвтoбусaДетей зaбирает/привозит школьный автобус. Через дорогу п. Октябрьский. 3 км до Мочище. Озеро в 20 минутах пешком. Цена 7.900.000 наличный расчет, 8.400.000 ипотека. Подходит под семейную и АйТи ипотеки

Местоположение

Регион
Новосибирская область
Район региона
Новосибирский район
Населенный пункт
коттеджный посёлок Аляска
Муниципальное образование
Станционный сельсовет
Улица
Михаила Гвоздеева

Информация об объекте

Подтип недвижимости
Дом/коттедж
Вид строения
Готовое
Площадь объекта (м²)
94.00
Год постройки
2023
Материал дома
Кирпич
Этажность
1
Кол-во жилых помещений
3
Санузел
Внутренний
Терасса
есть
Мебель
нет
Возможность прописки
есть

Информация о земле/участке

Площадь участка
5.50 сот
Категория земель
Земли сельхоз назначения
Разрешенное использование
для ведения садоводства

Коммуникации

Электричество
есть
Водоснабжение
есть
Вид водоснабжения
Круглогодичное
Тип водоснабжения
Центральное
Газоснабжение
Магистральный по границе участка
Отопление
Электричество
Канализация
Септик
Проводной интернет
возможность подключения

Поселковая инфраструктура

Внутрипоселковая дорога
Асфальтированная
Охрана
есть
Проживание
Круглогодичное
Уличное освещение
есть
Общественные внутрипоселковые зоны
Гостевые парковки, Детские площадки, Прогулочная парковая зона

Прочее

Кадастровый паспорт с установленными границами
да

Выбор местоположения

Задать вопрос / написать нам

E-mail: domgis@mail.ru

Мы свяжемся с Вами в течение дня.

Тех. поддержка
Предмет обращения:
Тукущая страница

Мы свяжемся с Вами в течение дня.

Уведомление
Предмет обращения:
Тукущая страница
Обратный звонок
Обратный звонок
Выберите ваш город
Пожаловаться

Объявление опубликовано.
Изменения сохранены

Период публикации - бессрочный, при условии подтверждения актуальности каждые 50 дней. Уведомления будут отправляться на Вашу электронную почту.

Выберите причину снятия с публикации

Снятые с публикации объявления не участвуют в поиске и недоступны для подробного просмотра.

Для повторной публикации нажмите «Вернуть в публикацию»