Продажа: Дом 114 м² + участок №54:19:022301:6180 6,8 соток
село Марусино, посёлок Соловьи, Серебряковой, 2 (Новосибирский район)

цена 10 900 000 руб.

№ объекта: 37744

Обновлено: 22.01.2026

  • Отключить автопереход
    карты со схемы на гибрид
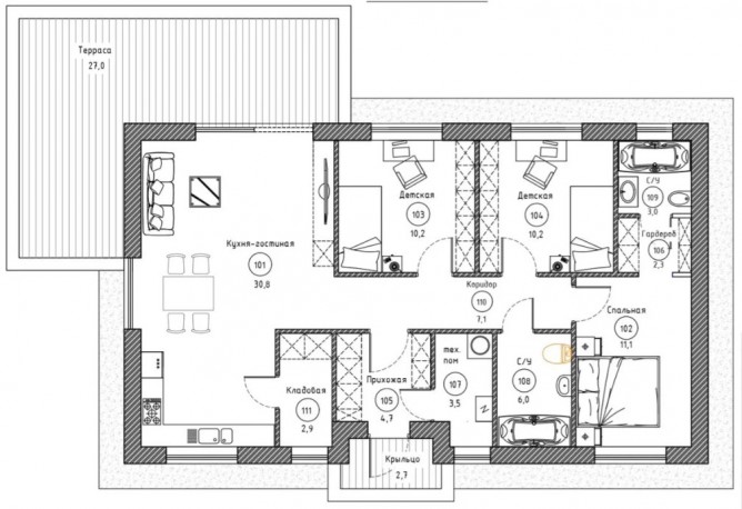
Одноэтажный дом с комбинированным фасадом. Общая площадь - 114 м². Кухня-гостиная с панорамными окнами и выходом на террасу Три спальни: одна из них – мастер-спальня со своим санузлом, гардеробной и портальной дверью, детская и рабочий кабинет Два санузла с местом для полноценной ванны Два гардероба: в прихожей и в мастер-спальне Техническое помещение 3,5 м² для разводки электрики и всех труб
  • Общее описание
  • Местоположение
  • Информация об объекте
  • Информация о земле/участке
  • Коммуникации
  • Поселковая инфраструктура
  • Прочее
Одноэтажный дом с комбинированным фасадом. Общая площадь - 114 м². Кухня-гостиная с панорамными окнами и выходом на террасу Три спальни: одна из них – мастер-спальня со своим санузлом, гардеробной и портальной дверью, детская и рабочий кабинет Два санузла с местом для полноценной ванны Два гардероба: в прихожей и в мастер-спальне Техническое помещение 3,5 м² для разводки электрики и всех труб

Местоположение

Регион
Новосибирская область
Район региона
Новосибирский район
Населенный пункт
село Марусино
Муниципальное образование
Криводановский сельсовет
Микрорайон
посёлок Соловьи
Улица
Серебряковой
Номер дома
2

Информация об объекте

Подтип недвижимости
Дом/коттедж
Вид строения
Готовое
Площадь объекта (м²)
114.00
Год постройки
2024
Санузел
Внутренний
Возможность прописки
есть

Информация о земле/участке

Номер участка
54:19:022301:6180
Площадь участка
6.82 сот
Категория земель
Земли населенных пунктов
Разрешенное использование
ИЖС

Коммуникации

Электричество
есть
Водоснабжение
есть
Вид водоснабжения
Круглогодичное
Газоснабжение
Магистральный по границе участка
Отопление
Центральное отопление
Канализация
Септик
Проводной интернет
возможность подключения

Поселковая инфраструктура

Внутрипоселковая дорога
Асфальтированная
Проживание
Круглогодичное

Выбор местоположения

Задать вопрос / написать нам

E-mail: domgis@mail.ru

Мы свяжемся с Вами в течение дня.

Тех. поддержка
Предмет обращения:
Тукущая страница

Мы свяжемся с Вами в течение дня.

Уведомление
Предмет обращения:
Тукущая страница
Обратный звонок
Обратный звонок
Выберите ваш город
Пожаловаться

Объявление опубликовано.
Изменения сохранены

Период публикации - бессрочный, при условии подтверждения актуальности каждые 50 дней. Уведомления будут отправляться на Вашу электронную почту.

Выберите причину снятия с публикации

Снятые с публикации объявления не участвуют в поиске и недоступны для подробного просмотра.

Для повторной публикации нажмите «Вернуть в публикацию»