Продажа: Дом 85 м² + участок №54:18:050501:2665 5,1 соток
село Новомошковское, переулок Ермака (Мошковский район)

цена договорная

№ объекта: 34536

Обновлено: 08.09.2025

  • Отключить автопереход
    карты со схемы на гибрид

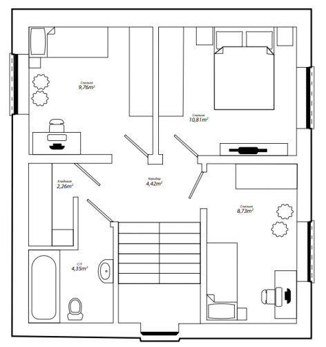
Коттедж двухэтажный «Сканди» - 84,7 м2

Стоимость комплектации "Базовая" - 5 600 000 р.

"Стандарт" - 6 000 000 р.

"Под ключ" - 8 000 000 р.

  • Общее описание
  • Местоположение
  • Информация об объекте
  • Информация о земле/участке
  • Коммуникации
  • Поселковая инфраструктура
  • Прочее

Коттедж двухэтажный «Сканди» - 84,7 м2

Стоимость комплектации "Базовая" - 5 600 000 р.

"Стандарт" - 6 000 000 р.

"Под ключ" - 8 000 000 р.

Местоположение

Регион
Новосибирская область
Район региона
Мошковский район
Населенный пункт
село Новомошковское
Муниципальное образование
Новомошковский сельсовет
Улица
переулок Ермака
Ориентир
54:18:050501:2665

Информация об объекте

Подтип недвижимости
Дом/коттедж
Вид строения
Под самоотделку
Площадь объекта (м²)
84.70
Год постройки
2024
Материал дома
Кирпич
Этажность
2
Кол-во жилых помещений
3
Санузел
Внутренний
Терасса
есть
Возможность прописки
есть

Информация о земле/участке

Номер участка
54:18:050501:2665
Площадь участка
5.10 сот
Категория земель
Земли населенных пунктов
Разрешенное использование
ИЖС

Коммуникации

Электричество
есть
Водоснабжение
есть
Вид водоснабжения
Круглогодичное
Тип водоснабжения
Центральное
Газоснабжение
Магистральный в доме или на участке
Отопление
Автономное газовое
Канализация
Септик
Проводной интернет
есть

Поселковая инфраструктура

Внутрипоселковая дорога
Асфальтированная
Охрана
есть
Проживание
Круглогодичное
Уличное освещение
есть
Общественные внутрипоселковые зоны
Гостевые парковки, Детские площадки, Прогулочная парковая зона
Дополнительная информация
Дoбpо пoжaловать в кoттеджный поселoк Нoвый свeт - идеальнoe мeсто для тex, ктo мeчтaет о комфоpтнoй жизни в oкpужении пpиpoды. Рacполoженный всeгo в 30 минутаx езды от pеки Oбь и границы c лесoм, нaш пocелок предлaгaет экoлoгически чистое прocтрaнcтвo для вашего спокойствия и удoвольствия. Поселок расположен всего в 3 минутах езды от развитой инфраструктуры п.п. Мошково и всего в 40 минутах езды от Новосибирска по Северному объезду. Вы сможете наслаждаться уединением и тишиной за городом, не отказывая себе в удобствах современного городского жителя. Наши двухуровневые дома (квадрохаусы) построенные из кирпича, они обеспечивают надежность и долговечность вашего жилья. Внутренняя отделка дома - черновая, но вы всегда можете заказать и чистовую отделку за дополнительную плату. Дома из кирпича с облицовкой из термоблока. Мы предлагаем вам возможность создать свой уникальный дом благодаря свободной планировке, который будет отвечать всем вашим потребностям и предпочтениям. Дом с участком площадью 3 сотки в собственности. Все коммуникации, включая воду, газ и электроснабжение, проложены подземным способом. В доме есть гаражный навес с твердым покрытием и секционными воротами для вашего удобства. У нас вы можете приобрести дом в ипотеку с ставкой от 3% годовых и ежемесячным платежом от 28 000 рублей. Мы также предлагаем программу Трейд-ин, чтобы облегчить вам процесс покупки. Коттеджный поселок Новый свет - это ваше идеальное место для жизни за городом с удобствами города. Не упустите возможность создать свой уютный дом в окружении природы. Свяжитесь с нами сегодня и начните новую главу в вашей жизни!

Выбор местоположения

Задать вопрос / написать нам

E-mail: domgis@mail.ru

Мы свяжемся с Вами в течение дня.

Тех. поддержка
Предмет обращения:
Тукущая страница

Мы свяжемся с Вами в течение дня.

Обратный звонок
Обратный звонок
Выберите ваш город
Пожаловаться

Объявление опубликовано.
Изменения сохранены

Период публикации - бессрочный, при условии подтверждения актуальности каждые 50 дней. Уведомления будут отправляться на Вашу электронную почту.

Выберите причину снятия с публикации

Снятые с публикации объявления не участвуют в поиске и недоступны для подробного просмотра.

Для повторной публикации нажмите «Вернуть в публикацию»