№ объекта: 34144
Обновлено: 21.11.2025
Стоимость: На стадии строительства - 8 500 000 р.
Готовый - от 11 00 000 р.
Дом подходит под все виды ипотек: господдержка, семейная, сельская и т.д.
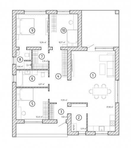
Дом сдается в предчистовой отделке:
Сам дом на монолитной плите 300мм, отсыпка пгс 300мм, разводка слива, стены и перегородки кирпичные, утепление стен, штукатуреный фасад «короед», плиты перекрытия ж/б, утепленная плоская кровля, разноуровневые потолки 3-3,5 м.
Можем выполнить чистовой ремонт: разводка всех коммуникаций под ключ, шпаклевка стен, откосы окон, подоконники, полы керамогранит, с/у плитка, инсталляция, установка санфаянс и т.д. Все это рассчитывается отдельно.
Стоимость: На стадии строительства - 8 500 000 р.
Готовый - от 11 00 000 р.
Дом подходит под все виды ипотек: господдержка, семейная, сельская и т.д.
Дом сдается в предчистовой отделке:
Сам дом на монолитной плите 300мм, отсыпка пгс 300мм, разводка слива, стены и перегородки кирпичные, утепление стен, штукатуреный фасад «короед», плиты перекрытия ж/б, утепленная плоская кровля, разноуровневые потолки 3-3,5 м.
Можем выполнить чистовой ремонт: разводка всех коммуникаций под ключ, шпаклевка стен, откосы окон, подоконники, полы керамогранит, с/у плитка, инсталляция, установка санфаянс и т.д. Все это рассчитывается отдельно.
Выбор местоположения
Мы свяжемся с Вами в течение дня.