Продажа: Дом 41 м² + участок 0,6 соток
поселок Элитный, микрорайон Берёзки, 6-й микрорайон, 13 кв.49 (Новосибирский район)

цена 4 805 000 руб.

№ объекта: 31108

Обновлено: 22.01.2026

  • Отключить автопереход
    карты со схемы на гибрид
В поселке представлены индивидуальные дома, дома на 2 хозяина (дуплексы), дома на 4 хозяина (квадруплексы) и таунхаусы. Площадь объектов – от 34 кв.м. до 170 кв.м. Собственник каждой квартиры будет располагать земельным участком площадью от 1 сотки до 6,5 соток.
  • Общее описание
  • Местоположение
  • Информация об объекте
  • Информация о земле/участке
  • Коммуникации
  • Поселковая инфраструктура
  • Прочее
В поселке представлены индивидуальные дома, дома на 2 хозяина (дуплексы), дома на 4 хозяина (квадруплексы) и таунхаусы. Площадь объектов – от 34 кв.м. до 170 кв.м. Собственник каждой квартиры будет располагать земельным участком площадью от 1 сотки до 6,5 соток.

Местоположение

Регион
Новосибирская область
Район региона
Новосибирский район
Населенный пункт
поселок Элитный
Направление
Советское шоссе (Новосибирский район: п.Элитный, п.Красннобск) район ул.Петухова и ул. Бронная
Микрорайон
микрорайон Берёзки
Улица
6-й микрорайон
Номер дома
13 кв.49

Информация об объекте

Подтип недвижимости
Таунхаус
Вид строения
Готовое
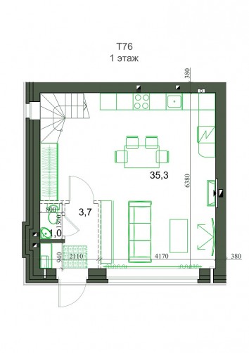
Площадь объекта (м²)
41.30
Год постройки
2023
Материал дома
Кирпич
Этажность
2
Кол-во жилых помещений
3
Санузел
Внутренний
Терасса
нет
Мебель
нет
Возможность прописки
есть

Информация о земле/участке

Площадь участка
0.60 сот
Категория земель
Земли населенных пунктов
Разрешенное использование
Малоэтажная многоквартирная жилая застройка (2.1.1)

Коммуникации

Электричество
есть
Водоснабжение
есть
Вид водоснабжения
Круглогодичное
Тип водоснабжения
Центральное
Газоснабжение
Магистральный в доме или на участке
Отопление
Центральное отопление
Канализация
Центральная
Проводной интернет
возможность подключения

Поселковая инфраструктура

Внутрипоселковая дорога
Асфальтированная
Охрана
есть
Проживание
Круглогодичное
Уличное освещение
есть
Общественные внутрипоселковые зоны
Гостевые парковки, Детские площадки

Выбор местоположения

Задать вопрос / написать нам

E-mail: domgis@mail.ru

Мы свяжемся с Вами в течение дня.

Тех. поддержка
Предмет обращения:
Тукущая страница

Мы свяжемся с Вами в течение дня.

Уведомление
Предмет обращения:
Тукущая страница
Обратный звонок
Обратный звонок
Выберите ваш город
Пожаловаться

Объявление опубликовано.
Изменения сохранены

Период публикации - бессрочный, при условии подтверждения актуальности каждые 50 дней. Уведомления будут отправляться на Вашу электронную почту.

Выберите причину снятия с публикации

Снятые с публикации объявления не участвуют в поиске и недоступны для подробного просмотра.

Для повторной публикации нажмите «Вернуть в публикацию»