Продажа: Дом 106 м² + участок №54:18:020401:9743 (вн 83) 10,0 соток
посёлок Октябрьский, коттеджный поселок Семейный (Мошковский район)

цена 7 500 000 руб.

№ объекта: 30190

Обновлено: 22.01.2026

  • Отключить автопереход
    карты со схемы на гибрид

Дом выполнен по финской технологии. Подключены все коммуникации.Вода центральная!Водяное отопление(теплый пол,выводы под батареи) Комплектация дома White box.

  • Общее описание
  • Местоположение
  • Информация об объекте
  • Информация о земле/участке
  • Коммуникации
  • Поселковая инфраструктура
  • Прочее

Дом выполнен по финской технологии. Подключены все коммуникации.Вода центральная!Водяное отопление(теплый пол,выводы под батареи) Комплектация дома White box.

Местоположение

Регион
Новосибирская область
Район региона
Мошковский район
Населенный пункт
посёлок Октябрьский
Микрорайон
коттеджный поселок Семейный

Информация об объекте

Подтип недвижимости
Дом/коттедж
Вид строения
Под самоотделку
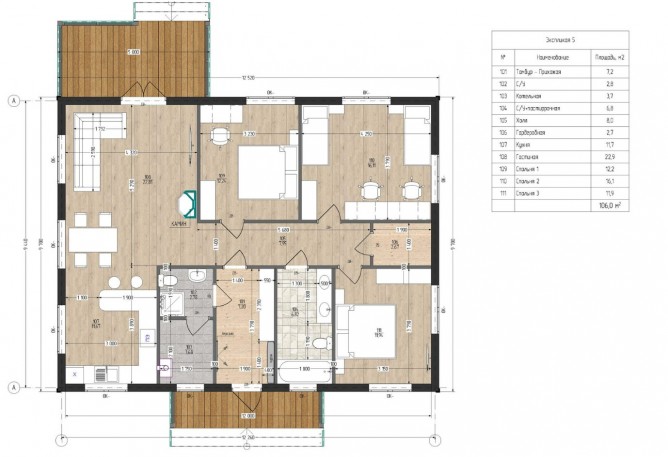
Площадь объекта (м²)
106.00
Год постройки
2025
Материал дома
Каркасный
Этажность
1
Кол-во жилых помещений
4
Санузел
Внутренний
Терасса
есть
Мебель
нет
Возможность прописки
есть

Информация о земле/участке

Номер участка
54:18:020401:9743 (вн 83)
Площадь участка
9.99 сот
Категория земель
Земли населенных пунктов
Разрешенное использование
ИЖС

Коммуникации

Электричество
есть
Водоснабжение
есть
Вид водоснабжения
Круглогодичное
Газоснабжение
Нет
Отопление
Возможность подключения
Канализация
Септик

Поселковая инфраструктура

Внутрипоселковая дорога
Щебеночная
Охрана
есть
Проживание
Круглогодичное
Уличное освещение
есть

Выбор местоположения

Задать вопрос / написать нам

E-mail: domgis@mail.ru

Мы свяжемся с Вами в течение дня.

Тех. поддержка
Предмет обращения:
Тукущая страница

Мы свяжемся с Вами в течение дня.

Уведомление
Предмет обращения:
Тукущая страница
Обратный звонок
Обратный звонок
Выберите ваш город
Пожаловаться

Объявление опубликовано.
Изменения сохранены

Период публикации - бессрочный, при условии подтверждения актуальности каждые 50 дней. Уведомления будут отправляться на Вашу электронную почту.

Выберите причину снятия с публикации

Снятые с публикации объявления не участвуют в поиске и недоступны для подробного просмотра.

Для повторной публикации нажмите «Вернуть в публикацию»