Продажа: Дом 59 м² + участок №8..38 0,8 соток
поселок Садовый, микрорайон Берёзки-3, 8 (Новосибирский район)

цена 5 982 000 руб.

№ объекта: 19271

Обновлено: 22.01.2026

  • Отключить автопереход
    карты со схемы на гибрид

Предусмотрена возможность установки камина

  • Общее описание
  • Местоположение
  • Информация об объекте
  • Информация о земле/участке
  • Коммуникации
  • Поселковая инфраструктура
  • Прочее

Предусмотрена возможность установки камина

Местоположение

Регион
Новосибирская область
Район региона
Новосибирский район
Населенный пункт
поселок Садовый
Микрорайон
микрорайон Берёзки-3
Номер дома
8

Информация об объекте

Подтип недвижимости
Таунхаус
Вид строения
Под самоотделку
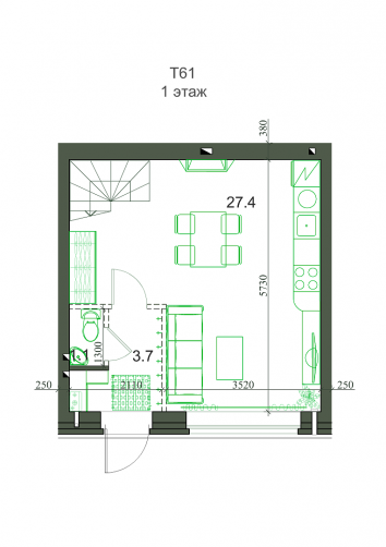
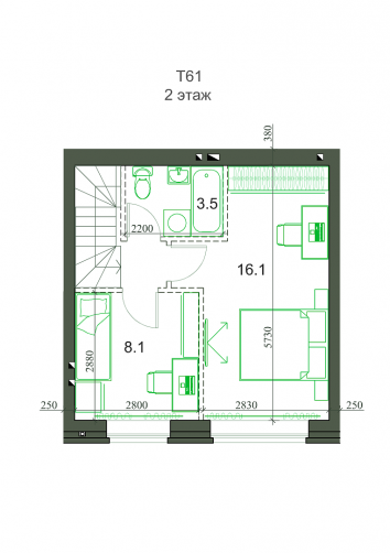
Площадь объекта (м²)
59.41
Материал дома
Кирпич
Этажность
2
Кол-во жилых помещений
3
Санузел
Внутренний
Терасса
нет
Мебель
нет
Возможность прописки
есть

Информация о земле/участке

Номер участка
8..38
Площадь участка
0.81
Категория земель
Земли населенных пунктов

Коммуникации

Электричество
есть
Водоснабжение
есть
Вид водоснабжения
Круглогодичное
Тип водоснабжения
Центральное
Газоснабжение
Магистральный в доме или на участке
Отопление
Центральное отопление
Канализация
Центральная
Проводной интернет
есть

Поселковая инфраструктура

Внутрипоселковая дорога
Асфальтированная
Проживание
Круглогодичное
Уличное освещение
есть
Общественные внутрипоселковые зоны
Гостевые парковки, Детские площадки, Прогулочная парковая зона

Прочее

Поставлен на кадастровый учет
да
Кадастровый паспорт с установленными границами
да

Выбор местоположения

Задать вопрос / написать нам

E-mail: domgis@mail.ru

Мы свяжемся с Вами в течение дня.

Тех. поддержка
Предмет обращения:
Тукущая страница

Мы свяжемся с Вами в течение дня.

Уведомление
Предмет обращения:
Тукущая страница
Обратный звонок
Обратный звонок
Выберите ваш город
Пожаловаться

Объявление опубликовано.
Изменения сохранены

Период публикации - бессрочный, при условии подтверждения актуальности каждые 50 дней. Уведомления будут отправляться на Вашу электронную почту.

Выберите причину снятия с публикации

Снятые с публикации объявления не участвуют в поиске и недоступны для подробного просмотра.

Для повторной публикации нажмите «Вернуть в публикацию»