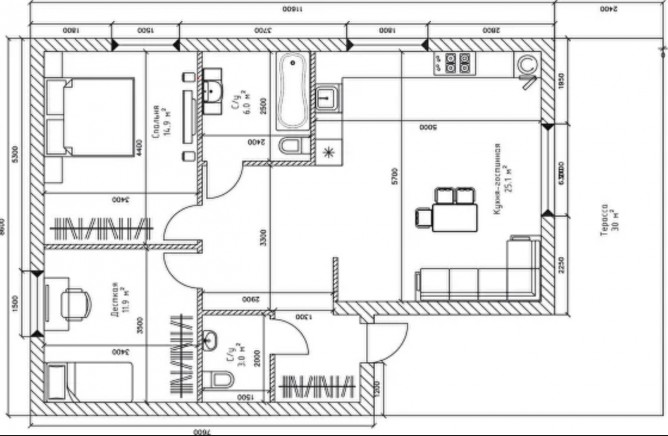
Продажа: Дом 75 м² + участок №54:18:020401:11305 6,3 соток
посёлок Октябрьский, 3 (Мошковский район)

цена 9 950 000 руб.

№ объекта: 18964

Обновлено: 28.11.2025

  • Отключить автопереход
    карты со схемы на гибрид
участок продается с подрядом на дом от ИП Жеребцов
  • Общее описание
  • Местоположение
  • Информация об объекте
  • Информация о земле/участке
  • Коммуникации
  • Поселковая инфраструктура
  • Прочее
участок продается с подрядом на дом от ИП Жеребцов

Местоположение

Регион
Новосибирская область
Район региона
Мошковский район
Населенный пункт
посёлок Октябрьский
Муниципальное образование
Барлакский сельсовет
Направление
Автодорога М-53 на Кемерово (п. Садовый - Барлак - Мошково - Болотное) и Восточное шоссе ( ст. Мочище - п. Октябрьский - п. Сокур)
Номер дома
3

Информация об объекте

Подтип недвижимости
Дом/коттедж
Площадь объекта (м²)
75.00

Информация о земле/участке

Номер участка
54:18:020401:11305
Площадь участка
6.25 сот
Категория земель
Земли населенных пунктов
Разрешенное использование
ИЖС

Коммуникации

Электричество
есть
Водоснабжение
есть
Вид водоснабжения
Круглогодичное
Тип водоснабжения
Скважина
Газоснабжение
Магистральный в доме или на участке
Отопление
Центральное отопление
Канализация
Септик
Проводной интернет
возможность подключения

Поселковая инфраструктура

Внутрипоселковая дорога
Асфальтированная
Охрана
есть
Проживание
Круглогодичное
Уличное освещение
есть
Общественные внутрипоселковые зоны
Гостевые парковки, Детские площадки, Прогулочная парковая зона
Дополнительная информация
Концептуальный коттеджный поселок МИРА ДЕРЕВНЯ. Поселок расположен в 22 км от пл. Калинина ( рядом пос. Заречный, Рябиновый, Светлый), есть своя управляющая компания, детская площадка, Мира-огород, есть небольшой отель. В Мира Деревне в 2020 году открывается Мира Парк и детский сад "Мира Детям".

Выбор местоположения

Задать вопрос / написать нам

E-mail: domgis@mail.ru

Мы свяжемся с Вами в течение дня.

Тех. поддержка
Предмет обращения:
Тукущая страница

Мы свяжемся с Вами в течение дня.

Обратный звонок
Обратный звонок
Выберите ваш город
Пожаловаться

Объявление опубликовано.
Изменения сохранены

Период публикации - бессрочный, при условии подтверждения актуальности каждые 50 дней. Уведомления будут отправляться на Вашу электронную почту.

Выберите причину снятия с публикации

Снятые с публикации объявления не участвуют в поиске и недоступны для подробного просмотра.

Для повторной публикации нажмите «Вернуть в публикацию»