БМ-16 №444

Цена строительства от 1 730 000 ₽* * Стоимость не является окончательной
Заявка на консультацию
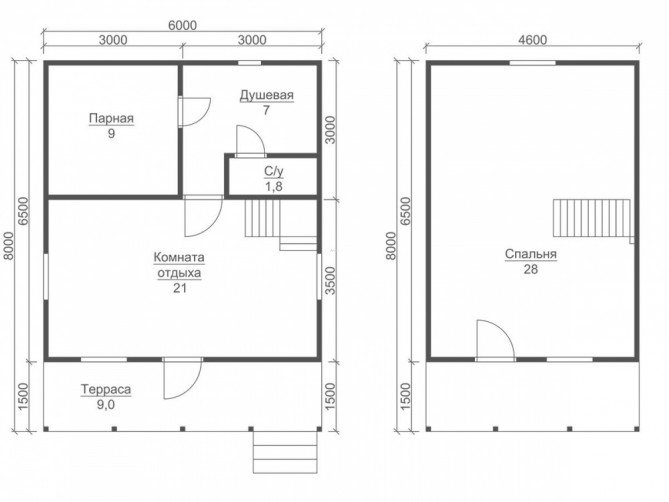
  • Общая площадь 48 м2
  • Длина 6 м
  • Ширина 8 м
Планировки
Описание проекта

Проект 16 – баня 6х8 м в компании малоэтажные дома. поражает изяществом внешнего вида. двухэтажная баня из бруса с балконом и мансардой включает в себя все необходимые для комфортного загородного отдыха в помещение.

Высота потолков бани из бруса – 2,05 м. Цвет мансардной крыши с металлическим покрытием на выбор: . Монтаж стен подразумевает прокладку джутового льна между брусом. профилированный брус 100 х 150 мм применяется при возведении стен и перегородок. Окна бань из бруса устанавливаются зимние, двойные. Полы двойные: полуобрезная доска 20 – 25 мм используется для чернового пола, а для чистового применяется строганная шпунтованная доска не менее 27 мм. Баня общей площадью 75 кв.м. может быть выполнена в двух ценовых вариантах в зависимости от используемого бруса: 140 х 140 мм либо 90 х 140 мм.

Уточнить все нюансы строительства размеров, видов и стоимости бань из бруса можно у наших консультантов. Кроме готовых проектов домов из бруса, мы разрабатываем индивидуальные, согласно всем предпочтениям клиента. Обратитесь к нам, и мы спроектируем и построим баню из бруса вашей мечты в городе Новосибирск.

Проф.брус 100х150 мм

Цена, сруб 950 000 руб

Цена, под ключ 1730 000 руб

Проф.брус 150х150 мм

Цена, сруб 1095 000 руб

Цена, под ключ 1875 000 руб

Вас может заинтересовать
Вас может заинтересовать

Выбор местоположения

Задать вопрос / написать нам

E-mail: domgis@mail.ru

Мы свяжемся с Вами в течение дня.

Тех. поддержка
Предмет обращения:
Тукущая страница

Мы свяжемся с Вами в течение дня.

Уведомление
Предмет обращения:
Тукущая страница
Обратный звонок
Обратный звонок
Выберите ваш город
Пожаловаться

Объявление опубликовано.
Изменения сохранены

Период публикации - бессрочный, при условии подтверждения актуальности каждые 50 дней. Уведомления будут отправляться на Вашу электронную почту.

Выберите причину снятия с публикации

Снятые с публикации объявления не участвуют в поиске и недоступны для подробного просмотра.

Для повторной публикации нажмите «Вернуть в публикацию»