Клаудио №558

Цена строительства от 4 110 000 ₽* * Стоимость не является окончательной
Заявка на консультацию
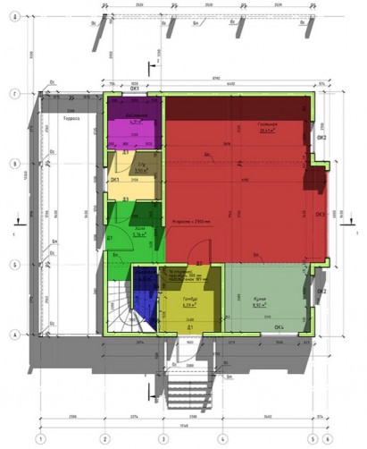
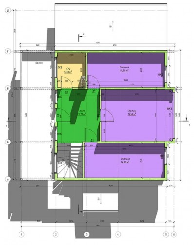
  • Общая площадь 138 м2
  • Длина 11.4 м
  • Ширина 9.5 м
  • Материал стен Каркасно-панельные
  • Количество этажей 2
  • Подвал Нет
  • Мансарда без мансарды
  • Гараж Нет
  • Терраса Да
  • Проживание Круглогодичное
  • Количество комнат 4
  • Количество спален 3
  • Количество санузлов 2
  • Вид проекта дом
  • Застройщик Строй-СИП
  • Отделка фасада Комбинированная
  • Крыша Двускатная
  • Можно купить домокомплект Нет
  • Модульный тип строения Нет
Планировки
Описание проекта

"Клаудио" - двухэтажный дом c удобной планировкой и оригинальным дизайном, идеальный вариант для небольшого загородного дома.

Фасад в данном проекте можно легко поменять на любой декоративный материал (штукатурка, кирпич, фасадная плитка и т.п.). Также, по Вашему пожеланию, мы легко можем внести изменения в этот проект.

Фасад и внешний облик:

  • Фундамент — деревянный ростверк на винтовых сваях
  • Несущие стены — SIP панель (174мм)
  • Покрытие — мягкая черепица
  • Наружная отделка — дикий камень, имитация бруса.

Комплектация:

"Теплый контур"

  • от 4.1 млн. рублей
  • Коробка с СИП-панелями,окнами,крышей

"Под чистовую"

  • от 5.4 млн. рублей
  • Внутренние перегородки,проводка,отопление

"Под ключ"

  • от 7.5 млн. рублей
  • Все готово к проживанию

Вас может заинтересовать
Вас может заинтересовать

Выбор местоположения

Задать вопрос / написать нам

E-mail: domgis@mail.ru

Мы свяжемся с Вами в течение дня.

Тех. поддержка
Предмет обращения:
Тукущая страница

Мы свяжемся с Вами в течение дня.

Обратный звонок
Обратный звонок
Выберите ваш город
Пожаловаться

Объявление опубликовано.
Изменения сохранены

Период публикации - бессрочный, при условии подтверждения актуальности каждые 50 дней. Уведомления будут отправляться на Вашу электронную почту.

Выберите причину снятия с публикации

Снятые с публикации объявления не участвуют в поиске и недоступны для подробного просмотра.

Для повторной публикации нажмите «Вернуть в публикацию»