Mono.duo №149

Цена строительства от 0 ₽* * Стоимость не является окончательной
Заявка на консультацию
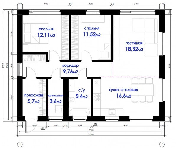
  • Общая площадь 88 м2
  • Длина 8.9 м
  • Ширина 11.7 м
  • Материал стен Газобетон/пеноблок
  • Количество этажей 1
  • Подвал Нет
  • Мансарда без мансарды
  • Гараж Нет
  • Терраса Да
  • Проживание Круглогодичное
  • Количество комнат 3
  • Количество спален 2
  • Количество санузлов 1
  • Вид проекта дом
  • Застройщик Urban House
  • Архитектурный стиль Современный
  • Отделка фасада Комбинированная
  • Крыша Двускатная
  • Можно купить домокомплект Нет
  • Модульный тип строения Нет
Планировки
Описание проекта

Комплектация standart+

  • Подготовка участка под застройку (земляные работы нулевого цикла)
  • Фундамент согласно геологии и проекту
  • Кладка наружных стен и перегородок, монтаж дверных и оконных перемычек + монолитный железобетонный пояс по стенам и перегородкам
  • Устройство кровли (либо устройство деревянной стропильной системы под скатную кровлю, либо плоская кровля из монолитных ж/б плит перекрытия), утепления и гидроизоляция
  • Устройство кирпичной вентиляционной шахты
  • Водосточная система кровли
  • Подшивка карнизов
  • Внешняя отделка фасада
  • Окна пластик + ламинация (под цвет карнизов)
  • Дверь входная (с терморазрывом)
  • Септик (автономная канализация)

Вас может заинтересовать
Вас может заинтересовать

Выбор местоположения

Задать вопрос / написать нам

E-mail: domgis@mail.ru

Мы свяжемся с Вами в течение дня.

Тех. поддержка
Предмет обращения:
Тукущая страница

Мы свяжемся с Вами в течение дня.

Уведомление
Предмет обращения:
Тукущая страница
Обратный звонок
Обратный звонок
Выберите ваш город
Пожаловаться

Объявление опубликовано.
Изменения сохранены

Период публикации - бессрочный, при условии подтверждения актуальности каждые 50 дней. Уведомления будут отправляться на Вашу электронную почту.

Выберите причину снятия с публикации

Снятые с публикации объявления не участвуют в поиске и недоступны для подробного просмотра.

Для повторной публикации нажмите «Вернуть в публикацию»