ОДНОЭТАЖНЫЙ ДОМ 73,6 м2 №173

Цена строительства от 5 128 000 ₽* * Стоимость не является окончательной
Заявка на консультацию
  • Общая площадь 74 м2
  • Длина 12.2 м
  • Ширина 8.3 м
  • Материал стен Газобетон/пеноблок
  • Количество этажей 1
  • Подвал Нет
  • Мансарда без мансарды
  • Гараж Нет
  • Терраса Нет
  • Проживание Круглогодичное
  • Количество комнат 4
  • Количество спален 3
  • Количество санузлов 1
  • Вид проекта дом
  • Застройщик ПСК Дом
  • Крыша Вальмовая
  • Можно купить домокомплект Да
  • Модульный тип строения Нет
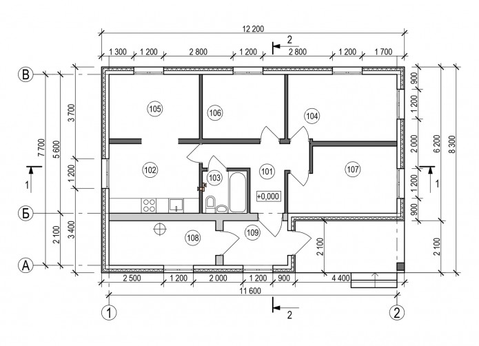
Планировки
Описание проекта

Самый востребованный проект! Размеры дома 12,2 х 8,4 м. Высота этажа 2,94 м. Данный вариант проекта предполагает наличие в доме тамбура 4,7; прихожей 6,9; гостиную 9,5 и кухню 10,2 чаще всего объединяют; трех жилых комнат 8,6/10,8/11,9; санузла 3,1; котельной 7,7 м.кв. Периметр чаще всего делают прямоугольным, что дает дополнительную площадь вместо навеса 8м.кв, в это помещение выносят с/у. И получается общая площадь 81,6 м2. Утепленная фундаментная плита 300 мм. Кровля вальмовая. Сроки строительства: фундаментная плита - 3-4 дня; набор достаточной прочности бетоном -5-7дней.

Кладка наружных и внутренних стен - 5 дней; устройство армопояса - 1 день; набор достаточной прочности бетоном - 5 дней; устройство кровли - 5-7 дней. Итого 25-28 дней. Стоимость проекта из Термоблока 40см. под отделку на 2023г с учетом вывода канализации и заведенной водой - 3 129 668 рублей. Остекление VEKA 5ти камерные с наружней отделкой- 183 887. Входные двери - 55 000. Электрика под ключ - 148 769. Отопление-водоснабжение (теплый пол, стяжка теплого пола, газовый котел , вся разводка воды) - 396 618. Выгребная яма -50 000.

Итого 3 963 942 рубля! Предоставим партнеров по отделке

Размер комнат:

  • Тамбура - 4,7 м2
  • Прихожая - 6,9 м2
  • Гостиная - 9,5 м2
  • Кухня - 10,2 м2
  • Комната 1 - 8,6 м2
  • Комната 2 - 10,8 м2
  • Комната 3 - 11,9 м2
  • Санузел - 3,1 м2
  • Котельная - 7,7 м2

Стоимость:

  • Домокомплект толщиной 30 - 449 812 ₽
  • Домокомплект толщиной 40 - 587 715,80 ₽

Стоимость под самоотделку:

  • Дом стены толщиной 30 - 3 800 000 ₽
  • Дом стены толщиной 40 - 3 932 337 ₽
Вас может заинтересовать
Вас может заинтересовать

Выбор местоположения

Задать вопрос / написать нам

E-mail: domgis@mail.ru

Мы свяжемся с Вами в течение дня.

Тех. поддержка
Предмет обращения:
Тукущая страница

Мы свяжемся с Вами в течение дня.

Уведомление
Предмет обращения:
Тукущая страница
Обратный звонок
Обратный звонок
Выберите ваш город
Пожаловаться

Объявление опубликовано.
Изменения сохранены

Период публикации - бессрочный, при условии подтверждения актуальности каждые 50 дней. Уведомления будут отправляться на Вашу электронную почту.

Выберите причину снятия с публикации

Снятые с публикации объявления не участвуют в поиске и недоступны для подробного просмотра.

Для повторной публикации нажмите «Вернуть в публикацию»