Шале №552

Цена строительства от 11 900 000 ₽* * Стоимость не является окончательной
Заявка на консультацию
  • Общая площадь 118 м2
  • Длина 12.5 м
  • Ширина 9.9 м
  • Материал стен Газобетон/пеноблок
  • Количество этажей 1
  • Подвал Нет
  • Мансарда Имеется
  • Гараж Нет
  • Терраса Да
  • Проживание Круглогодичное
  • Количество комнат 4
  • Количество спален 3
  • Количество санузлов 3
  • Вид проекта дом
  • Застройщик DMGroup
  • Архитектурный стиль Шале
  • Отделка фасада Комбинированная
  • Крыша Двускатная
  • Можно купить домокомплект Нет
  • Модульный тип строения Нет
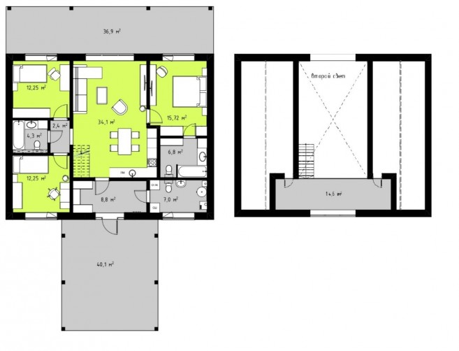
Планировки
Описание проекта

Дом функционально разделен на зоны кухни-гостиной, спального блока «детские» и спального блока «мастер спальни». Кухня-гостиная расположена в середине дома. Парковка для авто выполнена под навесом, рядом с главным входом в дом. Терраса находится под одной крышей с домом. Дом сдается в отделке white box. Гипсовая штукатурка Knauf под обои.

Дом: 118,1 кв.м (полезная площадь, без террасы и крыльца):

  • потолки 2,85 - 5,7м;
  • 2 спальни площадью 12,2 кв.м;
  • мастер спальня: комната 15,7 кв.м, санузел 6,8 кв.м;
  • кухня-столовая 34,1 кв.м;
  • гостиная 18,7 кв.м;
  • общий санузел 4,3 кв.м;
  • котельная 7 кв.м;
  • прихожая 8,8 кв.м.

Комплектация дома

- Фундамент: ребристая плита;

- Стены: наружные - автоклавный газобетон (Сибит) 300мм + утеплитель 100мм. Далее выполнена штукатура. Внутренние несущие стены - автоклавный газобетон (Сибит) 300мм.

Перекрытия: Монолитные;

- Кровля: Стропильная система обработана антисептиком. Профлист 0,45 мм. Утепление 200 мм;

- Дверь входная: Тëплый алюминий с терморазрывом и тонированным стеклом;

- Окна: Энергоэффективный 5-ти камерный профиль Veka, c замкнутым армированием, стеклопакет 40 мм. Фурнитура Winkhaus;

- Электромонтаж: провода использованы ГОСТ ВВГнг LS. Все магистрали в гофре, на каждую комнату установлен отдельный дифференциальный автомат. Заземление. В щите есть реле контроля напряжения, которое защитит бытовую технику от нежелательных перепадов напряжения;

- Отопление: выполнено трубой stout 16х2 металлопластик, выходы под радиаторы с лучевым способом обвязки. Нет соединений в полу цельная труба от радиатора до коллектора. Тёплые полы выполнены с шагом 15 см в каждой комнате отдельный контур, что позволяет регулировать температуру в каждом помещении по разному. Электрический котел и бак теплообменника выполнен из нержавеющей стали, так же как и тэны;

- Водопровод выполнен по технологии Axiopress с использованием трубы и фитингов PEXa. Реализована циркуляция горячей воды, что позволяет практически сразу пользоваться горячей водой. Вся система перед заливкой отпрессована давлением 8 бар;

- Вентиляция: Естественная;

- Канализация: Переливной септик объемом 7,5 м3;

- Пол: стяжка.

Выбор местоположения

Задать вопрос / написать нам

E-mail: domgis@mail.ru

Мы свяжемся с Вами в течение дня.

Тех. поддержка
Предмет обращения:
Тукущая страница

Мы свяжемся с Вами в течение дня.

Уведомление
Предмет обращения:
Тукущая страница
Обратный звонок
Обратный звонок
Выберите ваш город
Пожаловаться

Объявление опубликовано.
Изменения сохранены

Период публикации - бессрочный, при условии подтверждения актуальности каждые 50 дней. Уведомления будут отправляться на Вашу электронную почту.

Выберите причину снятия с публикации

Снятые с публикации объявления не участвуют в поиске и недоступны для подробного просмотра.

Для повторной публикации нажмите «Вернуть в публикацию»