Барн Хоум - 86/69 №89

Цена строительства от 0 ₽* * Стоимость не является окончательной
Заявка на консультацию
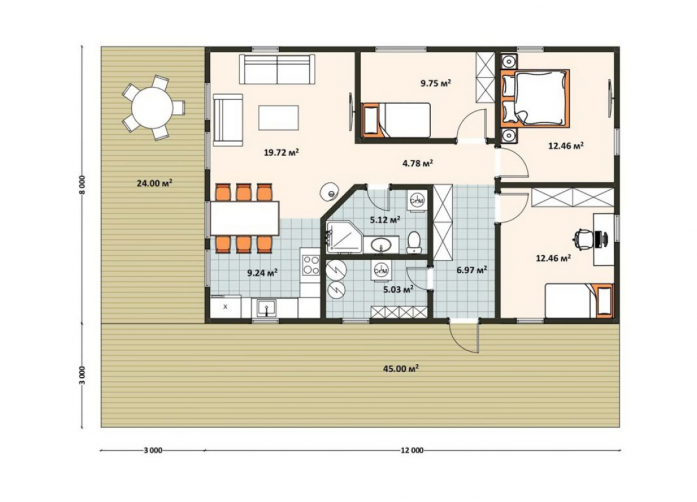
  • Общая площадь 154 м2
  • Длина 15 м
  • Ширина 11 м
  • Материал стен Каркас
  • Количество этажей 1
  • Подвал Нет
  • Мансарда без мансарды
  • Гараж Нет
  • Терраса Да
  • Проживание Круглогодичное
  • Количество комнат 4
  • Количество спален 3
  • Количество санузлов 1
  • Вид проекта дом
  • Застройщик Home Village
  • Архитектурный стиль Барнхаус
  • Отделка фасада Металл
  • Крыша Двускатная
  • Можно купить домокомплект Нет
  • Модульный тип строения Нет
Планировки
Описание проекта

Дома в стиле Барнхаус имеют отличительные особенности:

1. Небольшое количество внутренних перегородок. В стиле ценится наличие большого количества свободного пространства и естественное освещение.

2. Высокие потолки. Дверные и оконные проемы намного больше, чем у стандартных загородных домов.

3. При проектировании (как внешнем, так и внутреннем) используют строгие линии и четкие геометрические формы.

4. Оригинальная архитектура строения, напоминающая амбар.

5. Применяются только экологически чистые материалы.

6. Возможность облегчить фундамент при строительстве.

Вас может заинтересовать
Вас может заинтересовать

Выбор местоположения

Задать вопрос / написать нам

E-mail: domgis@mail.ru

Мы свяжемся с Вами в течение дня.

Тех. поддержка
Предмет обращения:
Тукущая страница

Мы свяжемся с Вами в течение дня.

Обратный звонок
Обратный звонок
Выберите ваш город
Пожаловаться

Объявление опубликовано.
Изменения сохранены

Период публикации - бессрочный, при условии подтверждения актуальности каждые 50 дней. Уведомления будут отправляться на Вашу электронную почту.

Выберите причину снятия с публикации

Снятые с публикации объявления не участвуют в поиске и недоступны для подробного просмотра.

Для повторной публикации нажмите «Вернуть в публикацию»